Ampio bilocale via Sardegna possibile trilocale

Milano - zona Washington

Rif: SARDEGNA BILO
Condividi Linkedin Whatsapp Stampa
€ 575.000
Appartamento
77 Mq
2 Vani
Classe energetica F
1 camera
1 bagno
Ascensore
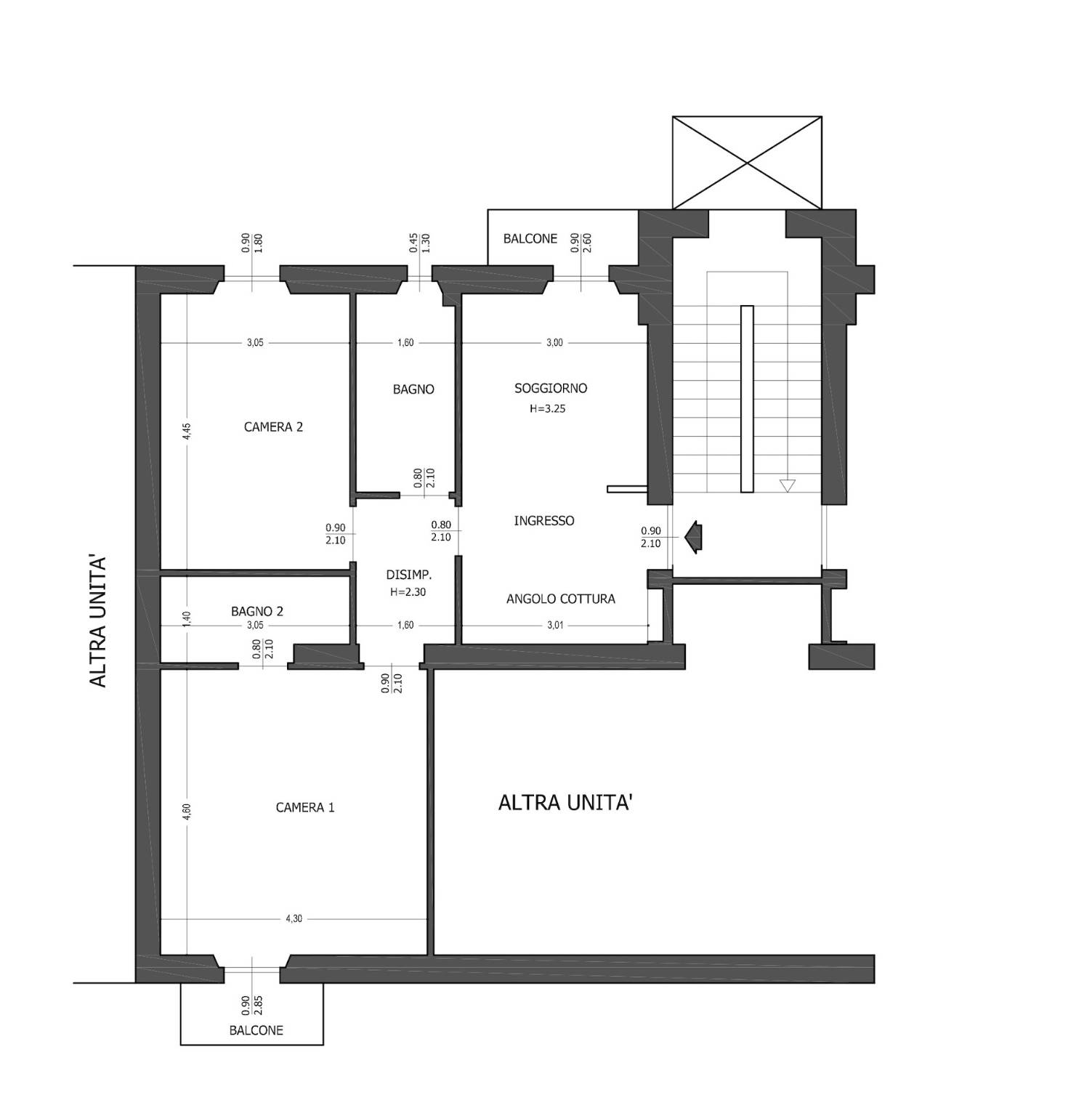
In stabile d'epoca signorile, proponiamo appartamento posto al piano 4 composto da ampio ingresso, soggiorno con balcone con affaccio su via Sardegna, cucina abitabile con balcone, bagno con finestra, camera da letto e ripostiglio.
L'appartamento è in buono stato.
Possibilità di trasformarlo in trilocale con cucina a vista.
Libero subito.
Cantina.

In stabile d'epoca signorile, proponiamo appartamento posto al piano 4 composto da ampio ingresso, soggiorno con balcone con affaccio su via Sardegna, cucina abitabile con balcone, bagno con finestra, camera da letto e ripostiglio.
L'appartamento è in buono stato.
Possibilità di trasformarlo in trilocale con cucina a vista.
Libero subito.
Cantina.

Dettaglio immobile

Contratto Vendita
Rif SARDEGNA BILO
Prezzo € 575.000
Provincia Milano
Comune Milano
Zona Washington
Indirizzo Via Sardegna 53
Superficie 77 mq
Vani 2
Camere 1
Bagni 1
Classe energetica F (DL 192/2005)
EPI 175 kwh/m2 anno
Piano 4 / 6
Riscaldamento centralizzato
Condizioni da ristrutturare
Spese condominiali € 300
Anno di costruzione 1930
Ascensore si
Cantina si
Cucina abitabile
Balcone si

Consistenze

Descrizione Superficie Sup. comm.
Principali
Immobile - 4° piano 77 Mq 77 Mqc
Totale 77 Mqc

Video

Planimetrie

Richiedi maggiori informazioni

Autorizzazione al trattamento dei dati personali+
Dichiaro di aver letto l'informativa sulla privacy ed accetto le condizioni d'utilizzo del servizio.
Riempi il campo con il codice riportato nell'immagine*
Codice Captcha
FIAIP
Chiamaci Contattaci